179-183 Fishburne StreetCharleston, SC 29403
Due to the health concerns created by Coronavirus we are offering personal 1-1 online video walkthough tours where possible.

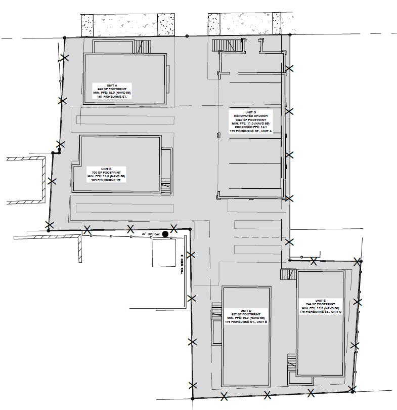
An exceptional permit-ready development opportunity in the heart of Charleston's Westside. 179-183 Fishburne Street is approved for the construction of five new homes, offering a rare chance to deliver a boutique residential project downtown without the long entitlement timeline. The required plans are permit-ready to be submited with the city of Charleston, allowing for a faster path to construction.The development plan includes the conversion of an existing church into a single-family home, creating a distinctive architectural centerpiece for the site. A small structure behind the church is approved for demolition, opening the parcel for efficient site circulation and maximizing buildable area. The project also provides 10 off-street parking spaces, a significant advantage inAn exceptional permit-ready development opportunity in the heart of Charleston's Westside. 179-183 Fishburne Street is approved for the construction of five new homes, offering a rare chance to deliver a boutique residential project downtown without the long entitlement timeline. The required plans are permit-ready to be submited with the city of Charleston, allowing for a faster path to construction. The development plan includes the conversion of an existing church into a single-family home, creating a distinctive architectural centerpiece for the site. A small structure behind the church is approved for demolition, opening the parcel for efficient site circulation and maximizing buildable area. The project also provides 10 off-street parking spaces, a significant advantage in this highly walkable downtown neighborhood. This property also qualifies for the South Carolina Abandoned Building Tax Credit, providing the buyer with substantial potential tax savings and enhancing the overall feasibility and return of the redevelopment. Ideally located within Charleston's thriving Westside district, the property benefits from immediate proximity to the WestEdge Innovation District, Harmon Field, The Citadel, Hampton Park, and the peninsula's expanding medical district. Residents will enjoy close access to local favorites such as Daps Breakfast & Imbibe, Rodney Scott's BBQ, and the shops and cafes along Spring and Fishburne Streets. Numerous parks, playgrounds, athletic fields, and walking paths sit just steps away, contributing to the strong lifestyle appeal of the area. With approved plans, strong neighborhood momentum, meaningful incentives, and lasting demand for new residential product downtown, this property stands out as a rare and highly desirable infill development opportunity.
| 13 hours ago | Listing updated with changes from the MLS® | |
| 14 hours ago | Listing first seen on site |
Listing information is provided by Participants of the CHS Regional MLS. IDX information is provided exclusively for personal, non-commercial use, and may not be used for any purpose other than to identify prospective properties consumers may be interested in purchasing. Information is deemed reliable but not guaranteed. Copyright 2025, CHS Regional MLS.
Last checked: 2025-12-05 03:08 PM UTC

Did you know? You can invite friends and family to your search. They can join your search, rate and discuss listings with you.