645 E Bay StreetCharleston, SC 29403
Due to the health concerns created by Coronavirus we are offering personal 1-1 online video walkthough tours where possible.




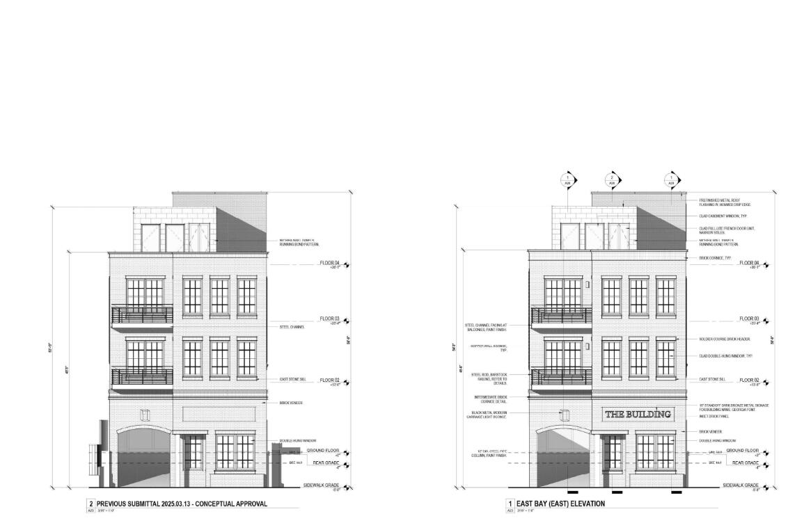
Mixed-Use Development Opportunity in Downtown Charleston. Introducing a rare development opportunity in one of Charleston's most dynamic downtown corridors. This offering provides a shovel-ready path forward for investors, owner-users, or residential developers seeking a high-quality boutique mixed-use asset in a premier Charleston location. Positioned on East Bay Street with direct views toward the Ravenel Bridge, this property offers the ability to construct three units across three stories, combining residential and commercial in a highly desirable, high-visibility location.Situated within the SC Opportunity Zone and falling under MU-1/WH zoning, the site supports flexible mixed-use development.The property is further guided by special district overlays including the Old City District, Old City Height District, and the Amusement and Recreation District, reinforcing long-term value potential. The site encompasses approximately 0.11 acres with approximately 5394 total building SF, 4,791SF of ground coverage lot size, allowable and up to three stories of vertical construction (per applicable zoning and planning guidelines). This is one of the few remaining opportunities to develop multiple units in the downtown Charleston core with this level of frontage, accessibility, and view corridor. Location Highlights *One block from the Cigar Factory redevelopment *Immediate proximity to the Union Pier redevelopment transformation corridor *Excellent visibility and access along East Bay Street *Harbor and Ravenel Bridge view corridors from upper levels *Walkable to local dining, retail, and waterfront amenities Proposed Program (Full Construction Set Conveys): *First Floor: ±1,093 SF commercial office suite *Second Floor: ±1,588 SF condo residence with harbor views *Third Floor / Fourth Level: ±2,713 SF two-story, 3BR / 2.5BA condo with harbor views and a private rooftop deck Parking: * Two (2) dedicated parking spaces for the office user *Two (2) dedicated parking spaces for the residential units (detached garage) *Total: Four (4) private parking spaces Total Proposed Building Area: ±5,394 SF The conveyance of a completed architectural and construction plan set materially reduces both design timeline and development risk, positioning the next owner to move efficiently into permitting and execution.
| 3 months ago | Listing updated with changes from the MLS® | |
| 4 months ago | Listing first seen on site |
Listing information is provided by Participants of the CHS Regional MLS. IDX information is provided exclusively for personal, non-commercial use, and may not be used for any purpose other than to identify prospective properties consumers may be interested in purchasing. Information is deemed reliable but not guaranteed. Copyright 2026, CHS Regional MLS.
Last checked: 2026-02-28 05:43 PM UTC

Did you know? You can invite friends and family to your search. They can join your search, rate and discuss listings with you.